当前位置:首页>长治市平顺县人民政府>部门信息公开目录>平顺县政府工作部门>平顺县行政审批服务管理局>公开内容>城乡规划
字体大小:【大】 【中】 【小】
| 索引号:000014349/2026-01117 | 成文日期:2026-01-12 |
| 发文机关:平顺县行政审批服务管理局 | 发布日期:2026-01-12 |
| 发文字号: | 主题词: |
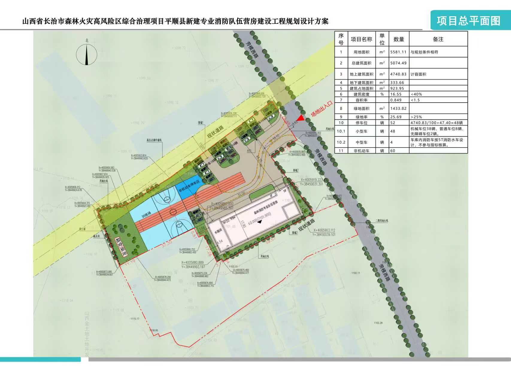
长治市规划和自然资源局建设的山西省长治市森林火灾高风险区综合治理项目平顺县新建专业消防队伍营房建设工程,位于平顺县西沟乡石埠头村北部,劳模西路西侧。本项目用地面积5581.11㎡,容积率0.849,建筑密度16.55%,绿地率25.69%,建筑退让用地红线南3.42米、北34.51米、东3米、西4.54米,停车位52个。建设内容包括营房建筑及附属配套工程,总建筑面积5074.49㎡,计容面积4740.83㎡。建筑层数为地上5层,局部地下1层。地上建筑面积为4740.83m2,地下建筑面积333.66㎡。建筑长51.0m,宽17.9m。
经审核,该项目符合规划要求,拟同意办理建设工程规划许可,现予以公示,公示时间为7个工作日。如有异议,可向平顺县政务大厅工程项目专区工程规划窗口反映。
联系电话:0355-8929500
通讯地址:平顺县兴华街006号政务大厅工程项目专区工程规划窗口
平顺县行政审批服务管理局
2026年1月12日

