当前位置:首页>长治市平顺县人民政府>部门信息公开目录>平顺县政府工作部门>平顺县行政审批服务管理局>公开内容>城乡规划
字体大小:【大】 【中】 【小】
| 索引号:000014349/2025-26757 | 成文日期:2025-10-20 |
| 发文机关:平顺县行政审批服务管理局 | 发布日期:2025-10-20 |
| 发文字号: | 主题词: |
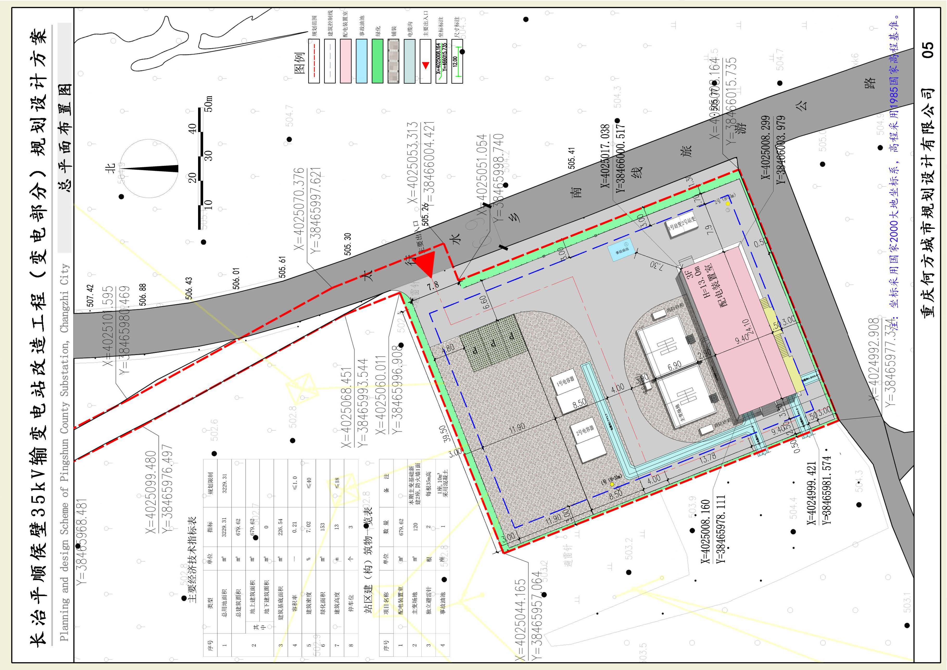
国网山西省电力公司平顺县供电公司承建的山西长治平顺侯壁35kV输变电改造工程(变电部分),位于平顺县石城镇崔家庄村南,漳河东岸,隔河为S324省道。本项目用地面积3229.31㎡,容积率0.21,建筑密度7.02%,绿地率4.74%,建筑退让用地红线南≥3米、北≥3米、东≥3米、西≥3米。建设内容包括新建配电装置室1座,主变场地2座,电容器2座,站变2座,电缆沟,独立避雷针2根,事故油池1座以及站内道路等,总建筑面积679.62㎡,计容面积679.62㎡,其中配电装置室建筑层数为3层,建筑面积为679.62㎡。
经审核,该项目符合规划要求,拟同意办理建设工程规划许可,现予以公示,公示时间为7个工作日。如有异议,可向平顺县政务大厅工程项目专区工程规划窗口反映。
联系电话:0355-8929500
通讯地址:平顺县兴华街006号政务大厅工程项目专区工程规划窗口
平顺县行政审批服务管理局
2025年10月10日

